Романенко Елена
дизайнер уюта
0   /   100
Планировка квартир  /  Планировка остальное

планировка дом пример

Объект
Частный дом
Площадь
160 кв.м

Для большой семьи

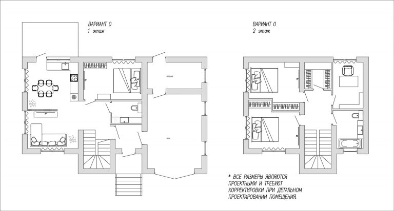
Первым важным этапом проекта стало определение оптимального расположения основной лестницы на второй этаж — ключевого элемента планировки. После этого мы приступили к детальной разработке вариантов, где важно было учесть создание нескольких функциональных зон: спальни, гостевой комнаты, кабинета и отдельной спальни для родителей, которые часто приезжают на выходные.

Процесс был долгим и требовал тщательной проработки, но, в итоге, удалось найти решение, которое идеально отвечает запросам.

ИТОГ

Вывод

Грамотное зонирование и продуманное расположение ключевых элементов позволяют создать комфортное пространство, идеально отвечающее потребностям заказчиков. Благодаря этому проект объединил эстетику и функциональность, став удобным и привлекательным решением для повседневной жизни и отдыха.